均整の取れた暮らしの機能 弦巻

Sold
  • シャンボール弦巻
  • 昭和52年10月
  • 東急田園都市線「駒沢大学」駅徒歩12分
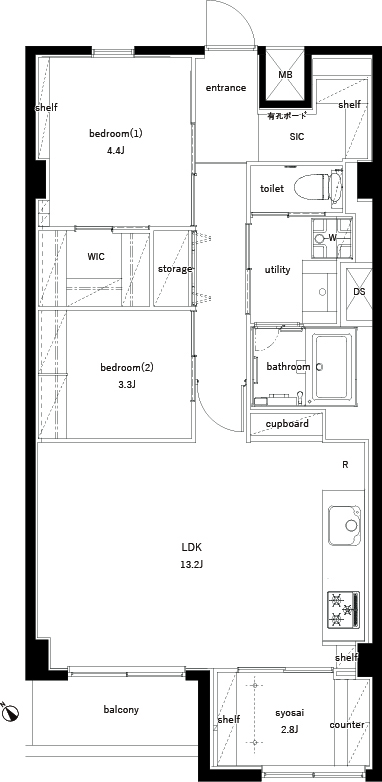
  • 3F 2LDK+家事室 58.85㎡
Outline

「駒沢大学」駅から徒歩12分、1階にはコンビニやクリニック等が入居するレンガタイル貼りの建物です。建築後47年が経過、R5年には大規模修繕を実施、給水管や排水管更新、EV更新等、大きな投資が繰り返されてきました。室内は南西の窓際に家事室を配置、シンプルな壁付けキッチン、2つの寝室と広めの靴収納、十分な収納を備えたバランスの良いお部屋です。

  • 図面
  • マップ
図面