欠点のないのがこの部屋の魅力 桜上水

Sold
  • チュリス桜上水
  • 昭和60年3月(新耐震基準適合)
  • 京王線「桜上水」駅徒歩3分
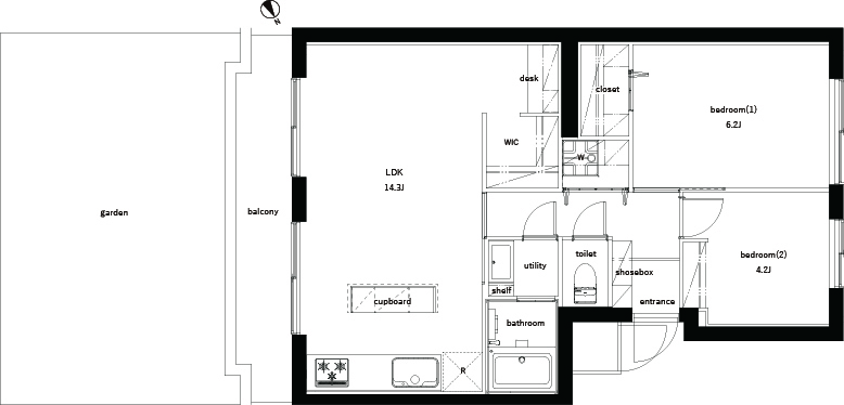
  • 1F 2LDK 57.71㎡
Outline

徒歩3分の桜上水駅は新宿へわずか13分、駅前のスーパーや商店街、桜並木の玉川上水や大きな区立公園までも徒歩圏、利便性と暮らしやすさをそなえた閑静な住宅立地です。室内は1F専用庭付きの2LDK、回遊性があり開放的なシステムキッチン、ワークスペースや収納など、暮らしに必要な要素が満遍なく充たされたお部屋です。

Matterport 360°VR で見る

  • 図面
  • マップ
図面