3匹のペットと5人暮らし 学芸大学

Sold
  • クリオ目黒ラ・モード
  • 平成15年2月(新耐震基準適合)
  • 東急東横線「学芸大学」駅徒歩15分
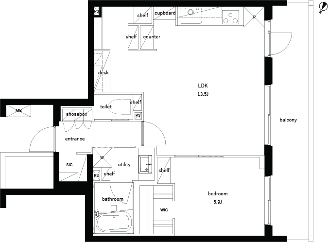
  • 2F 1LDK 52.28㎡
Outline

建物は来年で建築後20年、「学芸大学」駅、「目黒」駅、どちらにも少し距離はありますが徒歩2分の「清水」バス停より数分おきに目黒行きのバスがやってきます。室内は豊富な収納、ワークスペース付きの1LDK、在宅ワークの多いDINKsに向けた間取りプランで、犬猫3頭まで飼育可能(サイズ制限あり)のレアな物件です。

Matterport 360°VR で見る

  • 図面
  • マップ
図面