
天井高2.8m、無垢と無骨の最上階 清澄白河
For Rent
Scroll
Outline
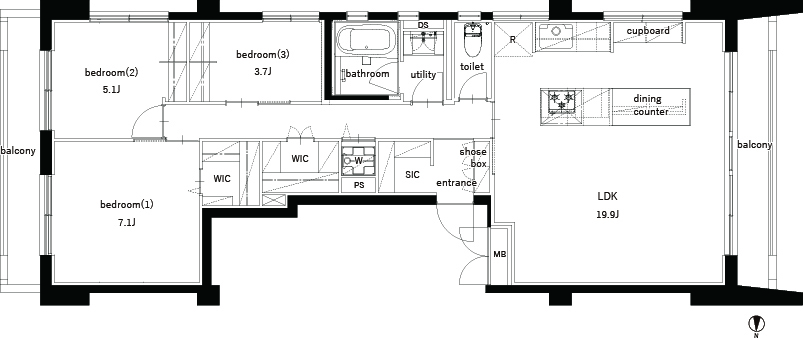
トレンドエリアの清澄白河駅から徒歩3分、カフェやギャラリー巡りを日常にできる、利便性と情緒が同居するスポットです。 全10世帯のこじんまりとした雑居ビルのような建物の最上階、83㎡超を1世帯で独占するプライベート感あふれる住戸です。玄関ドアを開けて中に入ればそこは別世界、2.8mもの天井高がもたらす圧倒開放感。断熱機能を備えた無骨な木毛セメント板の天井と、素足に心地よい無垢パイン材のフローリングが、この部屋ならではの豊かなコントラストを描きます。部屋の中心には、キッチンスタジオのような存在感を放つ大型アイランドキッチンを据えました。ダイニングテーブルとドッキングしたこの場所は、料理を作りながら、お酒を楽しみ、そのまま語らう暮らしのメインステージ。「これで足りないとは言わせない」ほどの豊富な収納もあり、清澄白河の街を見渡す爽快さと快適な暮らしのスペックを兼ね備えた希少性のあるお部屋です。
Matterport 360°VR で見る
- 図面
- マップ

物件を見たい



















