我が家のアイランドキッチンへ集合! 清澄白河

Rented
  • 大創ビル
  • 昭和48年10月
  • 半蔵門線「清澄白河」駅徒歩3分
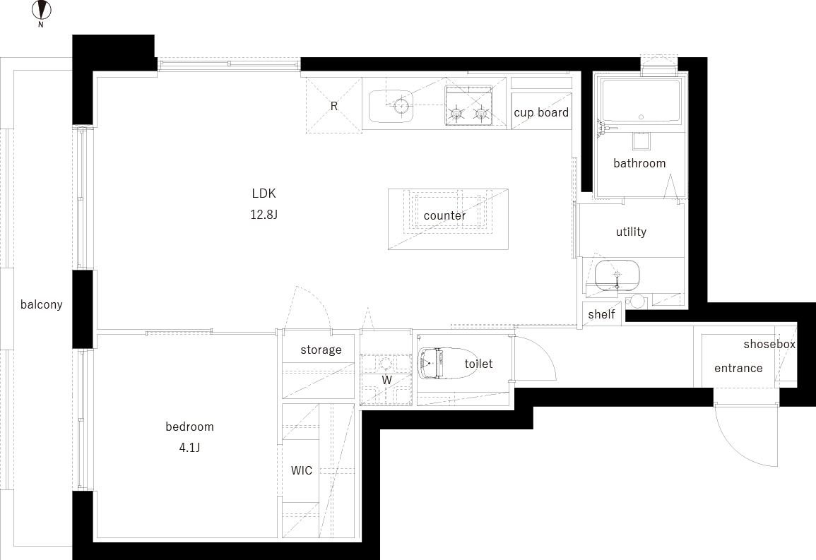
  • 4F 1LDK 42.01㎡
Outline

大江戸線・半蔵門線「清澄白河」駅より徒歩3分、深川エリアの下町情緒とカフェやギャラリーなどの新しさが同居した人気のスポットです。建物は全10世帯のこじんまりとした雑居ビル風、室内はオーク材の床、ステンレス製の回遊型アイランドキッチンは、友人を呼んでみんなで料理したくなるお部屋です。
6/6以降内見可能。

Matterport 360°VR で見る

  • 図面
  • マップ
図面