凛とした屋敷町の暮らし 東松原

Sold
  • 東松原シティハウス
  • 昭和57年5月(新耐震基準適合)
  • 京王井の頭線「東松原」駅徒歩3分
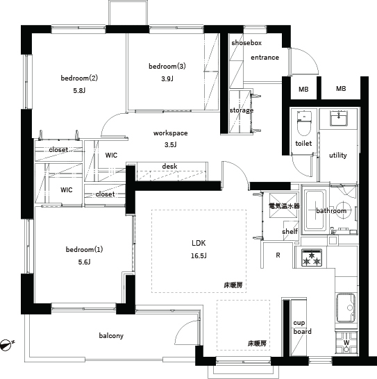
  • 3F(EV無し最上階) 3LDK+セカンドリビング 82.55㎡
Outline

深く鬱蒼とした街路樹の緑と広い区画のお屋敷がたち並び、凛とした空気が漂う羽根木一丁目、羽根木公園にもほど近い立地です。ベージュタイルの低層3階建ての3階部分の室内は、3LDK+セカンドリビング(約82㎡)、豊富な収納を備えた日当たりのよい南東角のお部屋です。

  • 図面
  • マップ
図面