水と風と緑のある暮らし 久が原

Sold
  • ヒルズ久が原 壱番館
  • 平成10年11月
  • 東急池上線「千鳥町」駅 徒歩9分
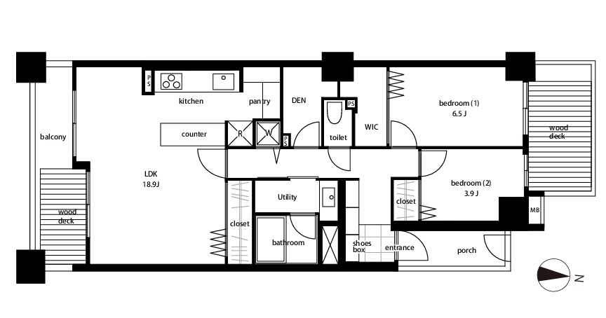
  • 2F 3LDK 74.64㎡
Outline

再開発による建替え事業の一環として、約19,000㎡の敷地に436戸、全3棟が配された長谷工コーポレーションの設計・施工の大型マンション。敷地の樹木がこんもりとした森のようになっており、中庭の池を中心とした住空間は自然環境が整っており、子育てにも最適です。

  • 図面
  • マップ
図面