
可能性がひろがるガレージの使用法 小石川
For Sale
Scroll
Outline
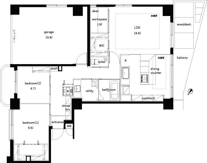
数々の名門校が集まるアカデミックな街、茗荷谷は桜並木の播磨坂や小石川植物園にほど近く、静かさと落ち着きが魅力の住宅地です。建物は白タイル張りの38世帯、ローン控除適合可能物件です。室内は1階部分108㎡の広さを活かしたゆとりの2LDK+書斎、部屋から直結の専用駐車場は、アトリエやギャラリー、スモールオフィスとしても良し、可能性を広げてくれるこの部屋だけの付帯設備です。
Matterport 360°VR で見る
- 図面
- マップ

物件を見たい

















