ガーデンプレイスパークビュー 恵比寿

Sold
  • パルテール恵比寿
  • 平成12年10月
  • 山手線「恵比寿」駅徒歩10分
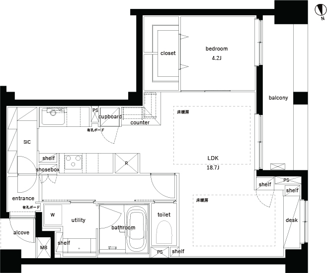
  • 5F 1LDK 59.07㎡
Outline

恵比寿、目黒どちらも約徒歩10分の目黒区三田一丁目。繰り返し通いたくなるような飲食店、ショップ、美術館などが生活圏の立地です。広い玄関収納につながるダイニングカウンター付キッチン、恵比寿ガーデンプレイスの緑を望む窓際の特等席にはワークデスクを設けました。バリバリ働き、遊ぶ、恵比寿フリークの暮らしが似合うお部屋です。

Matterport 360°VR で見る

  • 図面
  • マップ
図面