
均整のとれた文京ライフ 後楽園
Sold
Scroll
Outline
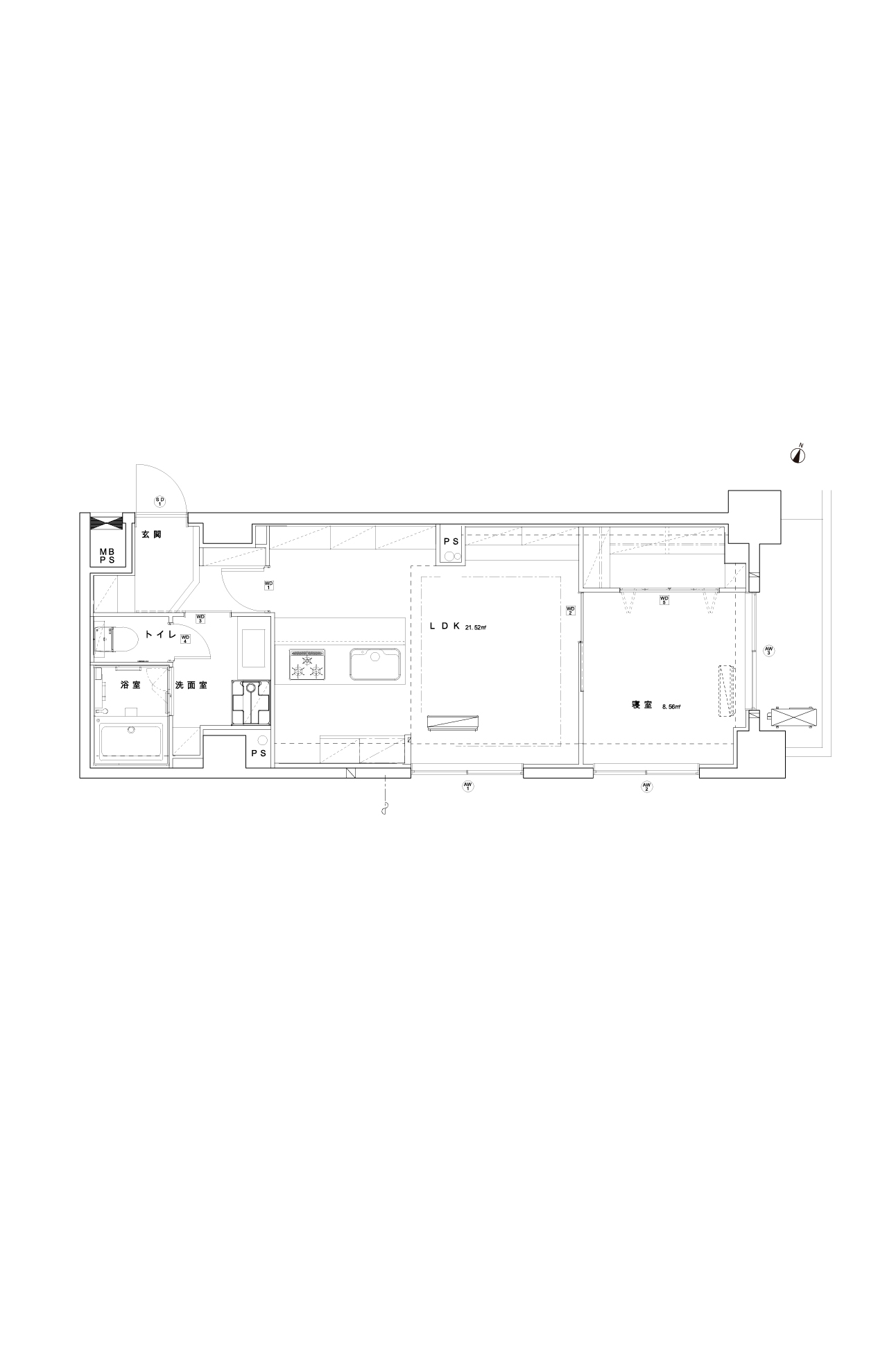
東京ドーム、文京区役所がほど近く大学や病院などが集積する文教エリアです。建物は商店街に面し、一階には店舗が入居する便利な立地です。室内はペットと暮らせる1LDK、充分な水回りとダイニングカウンター付きのキッチン、大小各種豊富な収納、デスクスペースも配置され、デッドスペースが少なく45㎡の面積とは思えない広さを体験しに来てみませんか?
Matterport 360°VR で見る
- 図面
- マップ

物件を見たい
東京ドーム、文京区役所がほど近く大学や病院などが集積する文教エリアです。建物は商店街に面し、一階には店舗が入居する便利な立地です。室内はペットと暮らせる1LDK、充分な水回りとダイニングカウンター付きのキッチン、大小各種豊富な収納、デスクスペースも配置され、デッドスペースが少なく45㎡の面積とは思えない広さを体験しに来てみませんか?
Matterport 360°VR で見る