駅近、商店街沿いの暮らし 三軒茶屋

Sold
  • 三軒茶屋オリンピックマンション
  • 昭和55年7月
  • 東急田園都市線「三軒茶屋」駅徒歩3分
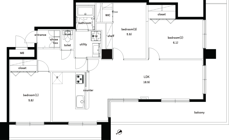
  • 5F 3LDK 79.09㎡
Outline

渋谷からのアクセスも良く、活気ある商店街と個性的な飲食店群などが人気の三軒茶屋から徒歩3分の立地です。商店街沿いの1,2Fにテナントが入るこの物件は5階の南西角部屋、ぐるっと窓に囲まれた明るいLDK、抜け感のある眺望が気持ちのいいお部屋です。

  • 図面
  • マップ
図面