
成城 COMING SOON
For Sale
Scroll
- セボンヴァンヴェール成城(機械式駐車場使用権付)
- 平成13年10月(新耐震基準適合)
- 小田急線「成城学園前」駅徒歩5分
- 9,990万円(税込)
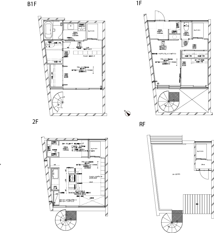
- B1F,1F,2F,屋上テラス(室内EV有) 1SLDK 95.80㎡
Outline
成城学園前駅から徒歩5分、閑静な住宅街にある9世帯の長屋形式のタウンハウスです。B1F~2F、屋上まではホームエレベーターで昇降、屋上テラスは周辺が低層建物のためプライベート感があふれ、ペット2匹と暮らせる戸建て感覚のユニークな住戸です。現在内装工事中、12月下旬完成予定。
Matterport 360°VR で見る
- 図面
- マップ

物件を見たい

