
三茶ライフのためのリノベ素材 三軒茶屋
For Sale
Scroll
Outline
三軒茶屋と駒沢大学のどちらも徒歩9分の中間地点で、駒沢公園や世田谷公園もお散歩圏です。建物は新耐震基準でローン減税も利用可、ペットと暮らせる室内はR246の逆側でとても静か。2012年にフルリノベされた物件なので、好みに合わせた部分リノベで自分好みの暮らしを手に入れてみませんか。
Matterport 360°VR で見る
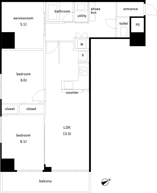
- 図面
- マップ

物件を見たい
三軒茶屋と駒沢大学のどちらも徒歩9分の中間地点で、駒沢公園や世田谷公園もお散歩圏です。建物は新耐震基準でローン減税も利用可、ペットと暮らせる室内はR246の逆側でとても静か。2012年にフルリノベされた物件なので、好みに合わせた部分リノベで自分好みの暮らしを手に入れてみませんか。
Matterport 360°VR で見る