過不足なし、コンパクトな暮らし 目黒本町

Sold
  • 秀和目黒清水池レジデンス
  • 昭和46年8月
  • 東急東横線「学芸大学」駅徒歩13分
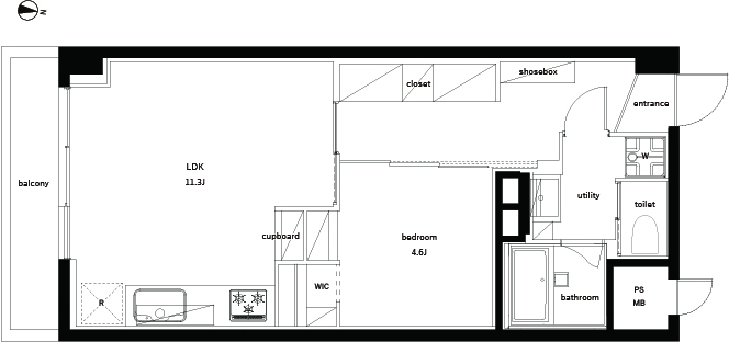
  • 4F 1LDK 44.09㎡
Outline

清水池公園に隣接し、樹々と共に50年の時を重ね風格を帯びたヴィンテージ感のある秀和レジデンスのリノベーションです。室内は公園向きではありませんが南向きで日照良好、大小各種豊富な収納、ガラス戸で仕切られたホテルライクな寝室、ゆとりのある浴室、開放的なキッチン、バリバリ働くおひとりさまのパークサイドライフが似合う設えです。

Matterport 360°VR で見る

  • 図面
  • マップ
図面