眺望は大きな空とスカイツリー 田端

Rented
  • 田端マンション
  • 昭和45年12月
  • JR山手線「田端」駅徒歩5分
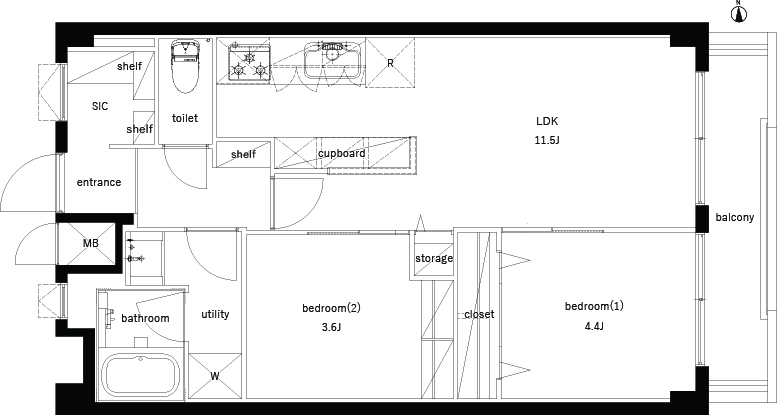
  • 10F 1LDK 45.76㎡
Outline

JR山手線「田端」駅から徒歩5分、下町の温かみと都心への利便性を兼ね備えた便利な立地です。建物はタクシー会社の事務所と居を共にする43世帯、室内は無垢パイン材フローリングの床、セミオープンで収納力も充分なキッチン、玄関土間に大容量のSIC、10Fからの眺めは周りに遮るものがなくスカイツリーを望み、東向きだから毎朝日の出を頂けるありがたいお部屋です。

  • 図面
  • マップ
図面