
杉並の家探し、ひとつの最適解 高井戸
For Sale
Scroll
Outline
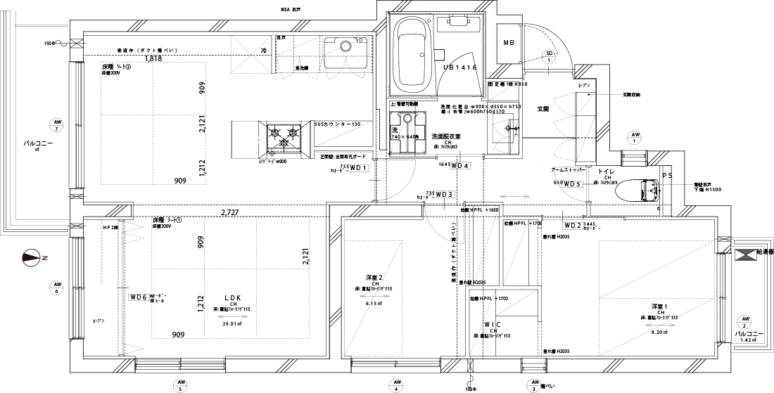
環八井の頭交差点から少し入った閑静な住宅地、竹中工務店によって施工された白いタイル貼りの低層マンションです。R5年には大規模修繕も実施されリフレッシュ、5階建ての2階部分でEVはありません。室内は、南向きで日当たりも良く、白い壁とオーク材の床が温かみを感じさせてくれます。Ⅱ型のシステムキッチン、十分な広さの水回りと豊富な収納、新耐震基準でローン控除も受けられるマンション選びの要素がバランス良く備わった物件です。
Matterport 360°VR で見る
- 図面
- マップ

物件を見たい



















