180°リバービュー ver.3 鵜の木

Sold
  • 多摩リバーサイドハウス
  • 昭和46年9月
  • 東急多摩川線「鵜の木」駅徒歩7分
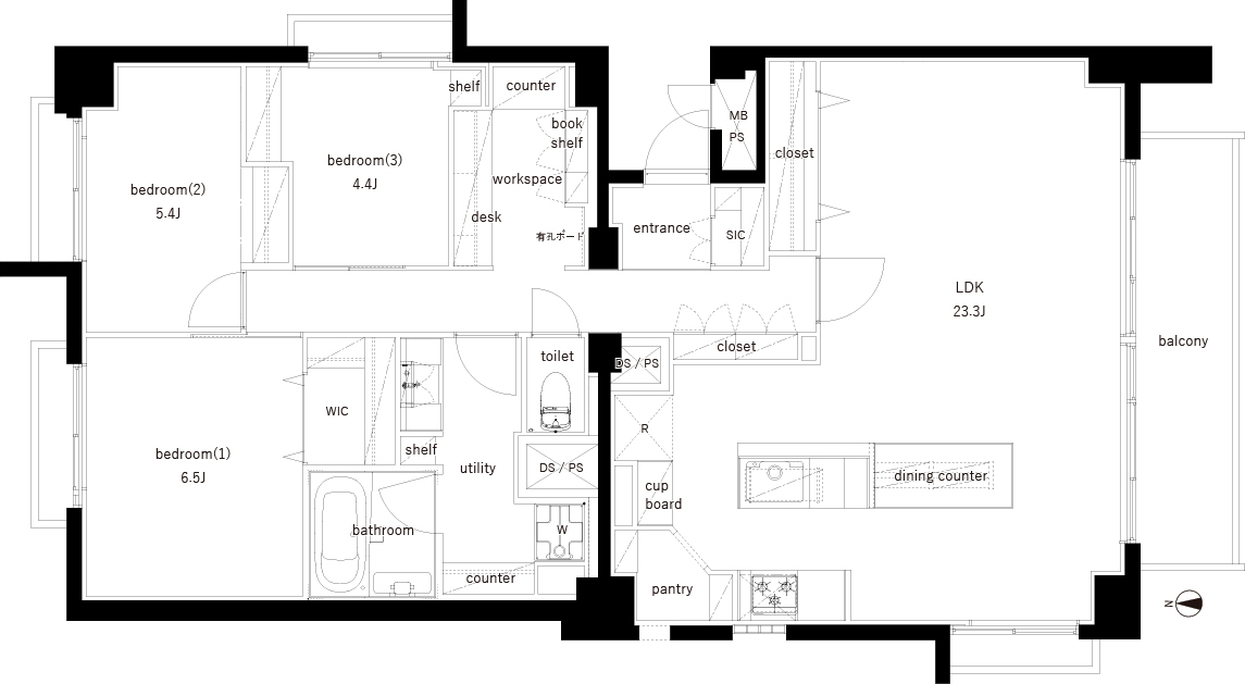
  • 6F 3SLDK 96.50㎡
Outline

鵜の木から徒歩7分、多摩川に隣接し敷地内にプールもある清水建設施工のヴィンテージマンションです。
室内は、オーク材の造り付けダイニングテーブルを超大型アイランドキッチンとドッキングさせ、まるでクッキングスタジオと見まがうような大迫力。小さな書斎があり、大小各種豊富な収納を備え、6階から多摩川を180度望む見事な眺望は他にかえがたい魅力です。

  • 図面
  • マップ
図面