180℃リバービュー 鵜の木

Sold
  • 多摩リバーサイドハウス 4号棟
  • 昭和46年9月
  • 東急多摩川線「鵜の木」駅 徒歩7分
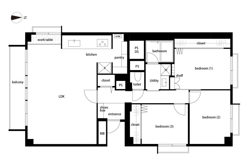
  • 14F 3LDK 96.50㎡
Outline

多摩川沿いのマンションは数あれど、これほどの眺望にはめったにお目にかかれません。敷地内にプールもある清水建設施工のヴィンテージマンションです。無償で利用できる専用駐車場の権利付、期間限定の特別修繕積立金は期間終了までの全額を売主が負担させていただきます。あそび心あふれたお部屋での暮らしとともに、悠々と流れる多摩川がいつもすぐそこにあります。

  • 図面
  • マップ
図面