必需設備を充たす実用的な部屋 用賀

For Sale
  • アーバンハウス用賀
  • 昭和53年1月
  • 田園都市線「用賀」駅より徒歩5分
  • 6,190万円(税込)
  • 2F(EV無) 1SLDK 56.94㎡
Outline

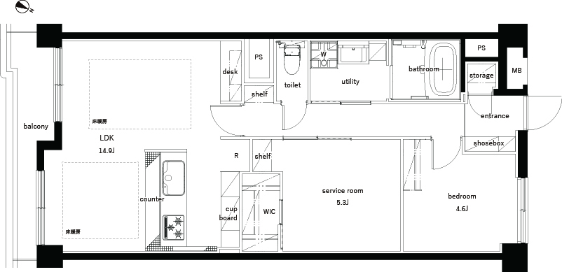
エキナカ、駅前が再開発でリフレッシュされた用賀駅から徒歩5分の閑静な住宅地です。建物は4階建ての2階部分、EVはありません。充分な広さの水回り設備とセミオープンで機能充実のキッチン、リビングにワークスペース、必要な収納等、暮らしの機能がそつなく盛り込まれたお部屋です。

Matterport 360°VR で見る

  • 図面
  • マップ
図面