世田谷区:Kさん![]()
共に大学で教鞭をとられているKさんご夫妻。ご主人の移籍により横浜から都内へ引っ越すことが決まり、賃貸生活を卒業して「初めてのマンション購入」を決断されたのだとか。お二人が選んだのは世田谷区内にある京王線沿線の駅近リノベマンション。その購入経緯と現在の住み心地についてお話を聞きました。
▲明るい笑顔と楽しい会話が絶えないKさんご夫妻は1歳6か月になる娘さんの子育て中。ご主人は「メディア文化論」、奥さまは「沖縄の歴史・哲学」の専門家として大学の教壇に立っています
ーもともとは「戸建て派」だったご主人と「マンション派」の奥さま適さを重視した選択ー
Kさん「私は京都の出身で実家はずっと一軒家。だから最初は“マンションに住む”ということがピンと来なかったんです。変な言い方になりますが、土地の上に建ってる一軒家と比べると「マンションは物理的に存在しないもの」というイメージがあって(笑)、そういう空間を買いたくないと考えていました」
奥さま「私は逆に沖縄の出身でマンション育ちなので、彼が何を言ってるのか“意味がわからない”と(笑)。マンションにも、敷地面積を住戸分で割った土地の所有権があることを説明したんですが“いや、マンションなら僕はずっと賃貸でいい”と言われて長らく議論していました」
ちょうどその頃、都内への引っ越しが決まり、第一子を考え始めたタイミングでもあったため、いよいよ本格的な住まい探しがスタートすることに。
奥さま「実は私自身は、お洋服も身の回りの物もヴィンテージが大好きで、独身時代からヴィンテージマンションのサイトを見ることが趣味だったんです。そこでたまたまUDATSUさんのホームページを発見して“将来こんなリノベマンションに住めたらステキだな”と思っていました。そこで、主人にも“この会社、一番いいよ!”と勧めたんです」
Kさん「僕はずっと俯瞰しているつもりだったんですが(笑)、子供のこともふくめていよいよ真剣に考えなくては…と、2021年頃からUDATSUさんを含めて数社のリノベマンションを内覧するようになりました。友人から“一戸建ては最終的に土地の価値しか残らないけれど、マンションなら建物の価値が残るから、資産価値評価はマンションのほうが高いんだよ”とアドバイスされたことも、背中を押されるきっかけになりましたね」
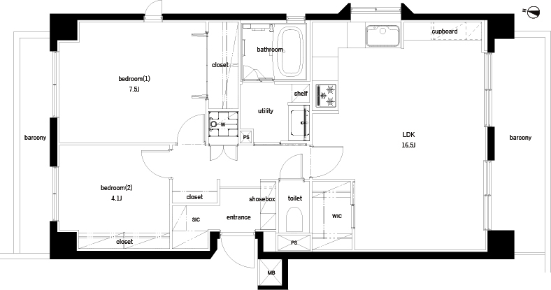
LD空間”がリノベテーマの2LDK(66.14m2)。ご夫婦揃共にお気に入りの空間は16.5畳の広々リビングで、気が付けばリビングで過ごす時間が長くなったそう。「うちの実家はキッチンとリビングが分かれていたので、LDKが一体となった空間は初めて。“リビングが広い”ってこんなに居心地が好いものなんだと感激しました」とご主人。
▲LD空間をより広く見せる工夫のひとつが「L型の壁付けキッチン」。東向きの大きな窓からたっぷりの陽光が届きます。「限られた床面積を“気持ち良く過ごすための空間”として設計してくれている点もUDATSUさんのリノベマンションの魅力ですね」と奥さま
ー担当者の「知識量の豊富さ」とデザインコンセプトの「ホワイトボックス」が決め手にー
運命のマンションに出会うまで、都内各所で計7物件を内覧したというKさんご夫妻。他の物件と見比べたからこそ、UDATSUに強く惹かれたのだとか。
Kさん「何と言っても、他のリノベ会社は“商売っ気”がものすごく強くて、押し売りされるような印象がありました。でも、UDATSUさんの場合はゴリゴリと押してこないんです(笑)内覧も遠隔方式で、自分たちだけで現地を見に行って、質問や感想については後からリモートで対応というスタイルでした。ちょっとビックリしましたが、それは“自社の物件に自信がある”からこそできることなんでしょうね」
▲UDATSUでは、事前に資料をお客様へお渡しし、時間制で暗証番号が変わるキーボックス(写真)を取り付け、お客様だけで内覧を行っていただく方法を採り入れています。質問等にはタブレットで対応。「自分たちだけだと気楽に内覧できるので嬉しい」との声も多く寄せられています
奥さま「わたしは、どんなインテリアにもマッチして“住む人がつくりこむ余白を残す”という《ホワイトボックス》のコンセプトが決め手になりました。実は当初、自分たちでゼロベースからリノベをすることも考えていたんですが、いろいろ調べてみるとあまりにも手間暇がかかりすぎる…総合的なインテリアのセンスと、自分たちの力で無理せず購入できる価格帯、間取り、立地などのバランスの良さも含めて、UDATSUさんが一番だという結論に至ったんです」
▲「ギラギラとした内装のリノベマンションも多い中で、ホワイトをベースにしたナチュラルな内装に惹かれた」と語る奥さま。テレビ台を兼ねた壁面収納は、お仕事の本や娘さんの絵本を入れるスペースとして後から追加したもの。まさに“住む人がつくりこむ余白”の部分にKさんご夫妻の新しいカラーがプラスされています
Kさん「僕の中で決め手になったのは、担当者の方の“知識の豊富さ”です。他社の物件も検討したんですが、担当者の知識抜けがあまりにも多くて驚きました。
例えば、もともとUDATSUさんから“築年数が古い物件の場合、排水管が床スラブを貫通して下階の天井に通っていることがあるので気を付けて下さいね”と言われていたんですが、そのことを質問しても、他社の担当者は“ちょっとわからないので調べておきます”と答えられない状態。結局その物件は床スラブの構造に問題があったことがわかり除外しました。
僕も妻も、職業柄どうしても細かいことが気になり、まず情報を入れてからじっくり考えるタイプなので、UDATSUさんの知識量の豊富さは本当に頼もしく感じられました」
▲ご夫婦の書斎として使っている7.5畳の洋室には、壁一面に大きな本棚が。「主人も私も仕事柄本が多いので、この書棚は後から取り付けました」
▲ダイニングの壁面に設置されているサイドボードはUDATSUの設計。「スペースが広くてとても使いやすいんですが、右の大きな引き出しの収納方法について悩んでいるので、近々《お片づけサービス》を受けてプロの方からアドバイスをしてもらいたいと思っています」と奥さま
▲廊下のクローゼットには扉をつけずオープンにすることで、視覚的な圧迫感がなくなり収納力もアップ
▲奥さまのお気に入りはリビングの窓に映る緑の借景。「窓から電車が見えるので、娘はすっかり電車好きになりました。窓が大きくて、家の中に居ながら外も楽しめる点も気に入っています」。二重窓構造になっており断熱・防音性能も◎。奥さまの趣味のバイオリンや三線の演奏もご近所に気兼ねなく楽しめるそう
ーリノベマンションの魅力は「日本が最も豊かな時代」に建てられたことー
インタビューの最後に、いま「リノベマンションの購入」を考えている皆さんへのアドバイスをお聞きしました。
奥さま「そもそも“リノベ=古い”という考え方が、もう既に古いと思うんです(笑)。確かに新築マンションは、新しくてキラキラ見えるかもしれませんが、そのマンションが建てられたときの日本の経済状況、使っていた資材、設計した会社の方々の想い、工事に携わった皆さんの気持ちの余裕など、マンションづくりの背景が今とはまったく違います。その背景を総合的に“価値”として見出せる方には、リノベマンションがおすすめだと思います」
Kさん「リノベマンションを購入するときは、できるだけ事前に情報を集めて学習した方が良いですね。僕はマンションの知識が全くなかったので、ネット情報も含めてとにかく学習しました。そして、疑問があったらそれをUDATSUさんに確認してみる、すると、担当者の方があたふたすることなく的確に答えてくれる(笑)──そういう信頼できる会社を選ぶことが大切だと思います」
入居から2年が経ち、Kさん邸の《ホワイトボックス》はどんどん鮮やかな色彩へと変化を続けています。ご家族の成長と共に、UDATSUのリノベマンションの住空間がどのように深みを増していくのか?これからも楽しみです。
▲明るい笑顔と楽しい会話が絶えないKさんご夫妻は1歳6か月になる娘さんの子育て中。ご主人は「メディア文化論」、奥さまは「沖縄の歴史・哲学」の専門家として大学の教壇に立っています
LD空間”がリノベテーマの
▲LD空間をより広く見せる工夫のひとつが「
▲UDATSUでは、事前に資料をお客様へお渡しし、時間制で暗証番号が変わるキーボックス(写真)を取り付け、お客様だけで内覧を行っていただく方法を採り入れています。質問等にはタブレットで対応。「自分たちだけだと気楽に内覧できるので嬉しい」との声も多く寄せられています
▲「ギラギラとした内装のリノベマンションも多い中で、ホワイトをベースにしたナチュラルな内装に惹かれた」と語る奥さま。テレビ台を兼ねた壁面収納は、お仕事の本や娘さんの絵本を入れるスペースとして後から追加したもの。まさに“住む人がつくりこむ余白”の部分に
▲ご夫婦の書斎として使っている
▲ダイニングの壁面に設置されているサイドボードはUDATSUの設計。「スペースが広くてとても使いやすいんですが、右の大きな引き出しの収納方法について悩んでいるので、近々《お片づけサービス》を受けてプロの方からアドバイスをしてもらいたいと思っています」と奥さま
▲廊下のクローゼットには扉をつけずオープンにすることで、視覚的な圧迫感がなくなり収納力もアップ
▲奥さまのお気に入りはリビングの窓に映る緑の借景。「窓から電車が見えるので、娘はすっかり電車好きになりました。窓が大きくて、家の中に居ながら外も楽しめる点も気に入っています」。二重窓構造になっており断熱・防音性能も◎。奥さまの趣味のバイオリンや三線の演奏もご近所に気兼ねなく楽しめるそう