
今宵もダイニングカウンターで一杯 千駄木
Sold
Scroll
Outline
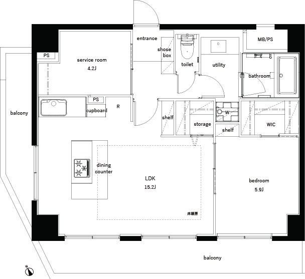
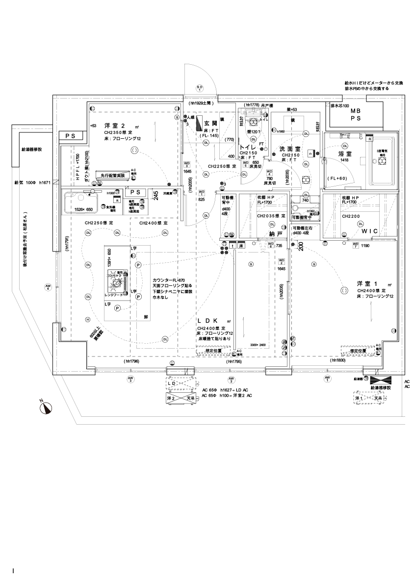
文教地区で歴史を感じる街並みや商店街のレトロな雰囲気が人気の「谷根千エリア」、千駄木駅から徒歩2分の立地です。建物は築後46年のレンガタイル貼り、昨年大規模修繕が完了、外観、共用部の清潔感を保っています。室内は豊富な収納、Ⅱ型のアイランドキッチン、コンベック付きガスコンロを囲むように配置されたL字型ダイニングカウンターが特徴的なお部屋です。
Matterport 360°VR で見る
- 図面
- マップ

物件を見たい

















