
豊洲スマートライフの最適解
Sold
Scroll
Outline
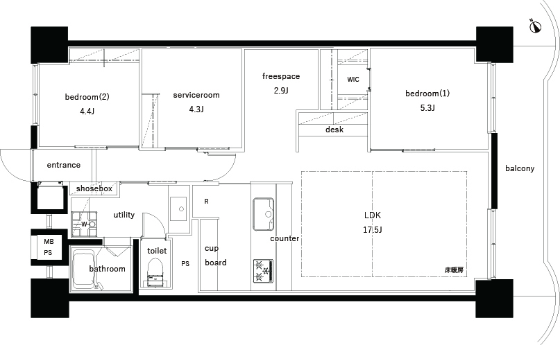
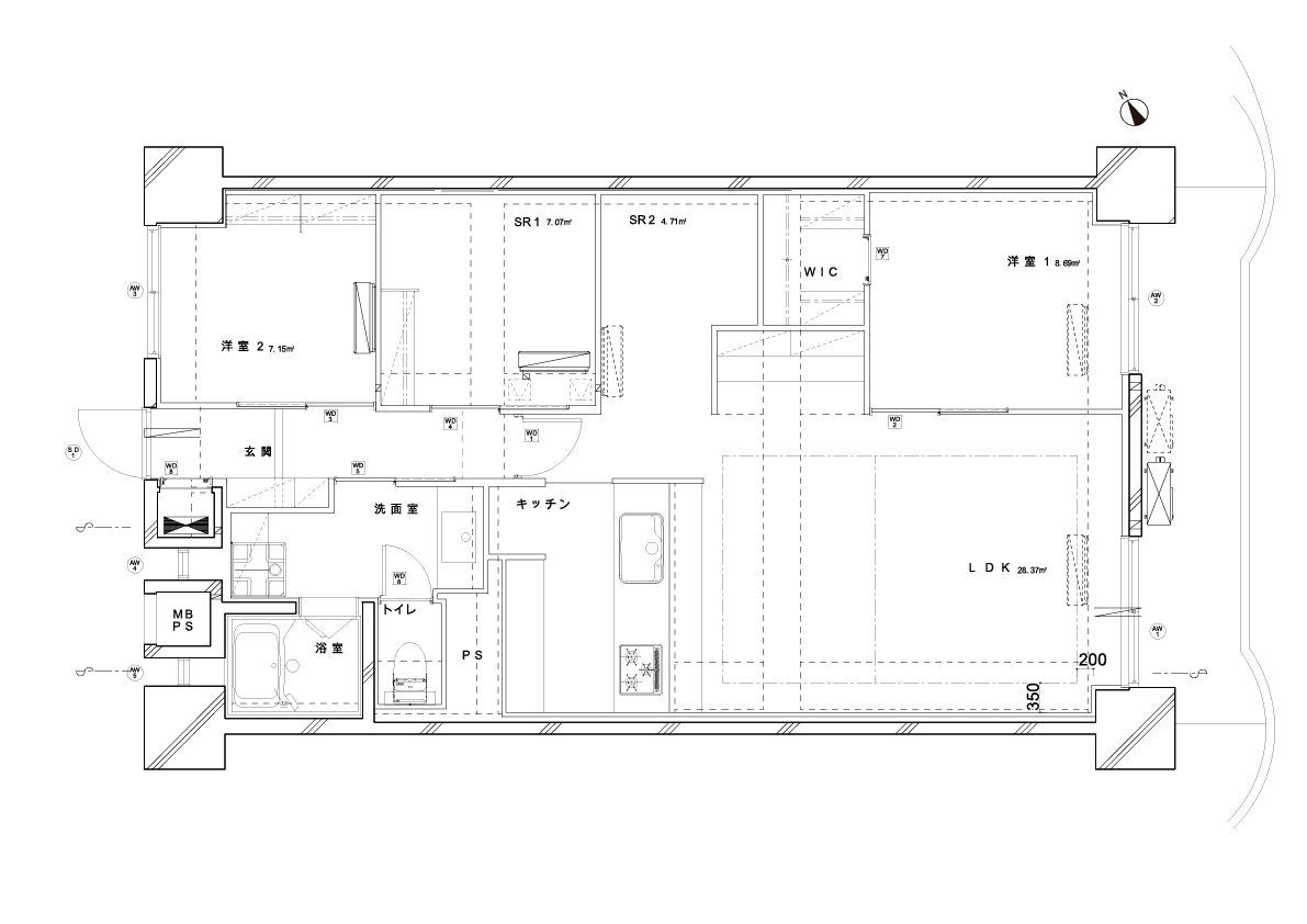
豊洲市場、大型商業施設の開発、都心への近さとコスパの良さで進化を続けるウォーターフロントエリア豊洲。駅至近かつ良好な管理体制、耐震補強工事も実施されています。室内の最大の弱点は狭い浴室ですが、それをカバーするように3つの寝室に加えて広めのリビングにはワークデスクを配置、その隣に予め役割を固定しないマルチスペースを設け、住む人の「今の正解」に合わせてWICや書斎に転用できる設計です。ペットと暮らせて子育て世代からシニアまでバランスのとれた心地の良いコミュニティで新生活をはじめませんか?
Matterport 360°VR で見る
- 図面
- マップ

物件を見たい



















