
川のほとりで庭がある暮らし 武蔵新田
For Sale
Scroll
Outline
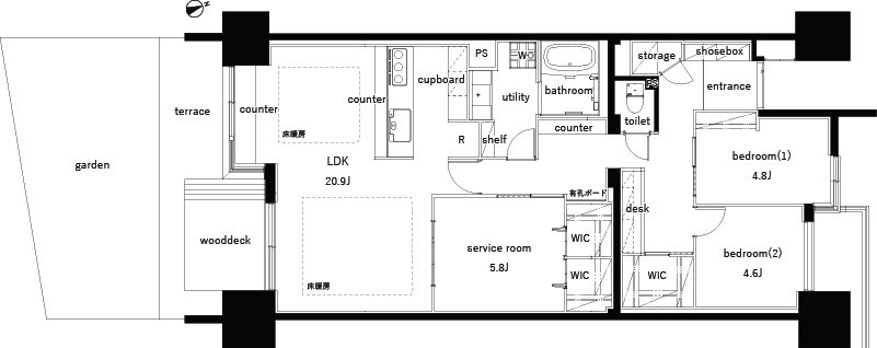
竹中工務店により施工され、築後43年の間大小の修繕を適宜くりかえし、多摩川ハイムは風格漂う大規模マンションとなりました。全戸多摩川向き3号棟、1F部分のこのお部屋は残念ながら川は見えません。その代わりたっぷりプライベート感あふれる約25Jの専用庭がついています。室内は、ウッドデッキのある専用庭へつながるリビング、2つの子供部屋に面したワークスペース、ファミリークローク、夫婦それぞれのクローゼットなど93㎡の広さを存分に活用した安心して子育てできる1階住戸です。
Matterport 360°VR で見る
- 図面
- マップ

物件を見たい



















