
多摩川 NEW!
For Sale
Scroll
Outline
「東横最寄り、家族4人でゆったり、でも価格もデザインも妥協したくない」という贅沢な条件を叶える鍵は、1970年築・旧法賃借権を選択にありました。多摩川駅から徒歩7分の丘の上、南西向きの窓から「スカーン」と抜ける爽快な眺めは日々の忙しさを忘れさせてくれます。
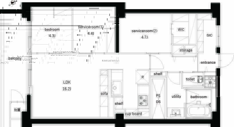
71㎡のゆとりの空間、夫婦2人が並んでも余裕のあるⅡ型キッチンとダイニングには造作ソファを備えました。さらに広い玄関土間やすっきり暮らせる豊富な収納も随所に配置しました。
資産の「所有」に縛られず、今この瞬間の「暮らしの豊かさ」が賢い選択だと考える、そんな審美眼をもったファミリーへお届けしたいお部屋です。
現在内装工事中、4月上旬完成予定。
Matterport 360°VR で見る
- 図面
- マップ

物件を見たい



















