
プライベートバルコニーのある特等席成城
For Sale
Scroll
Outline
三井不動産が成城の地に、2003年の渾身の一作として開発した全387邸の大規模マンションのパークシティ成城。
駐車場を地下に配することで、竣工から23年の時を経て、敷地内の豊かな樹木と水辺は周辺の自然と調和し、新築では決して手に入れることができないヴィンテージの風格を醸し出しています。
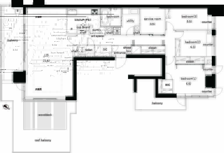
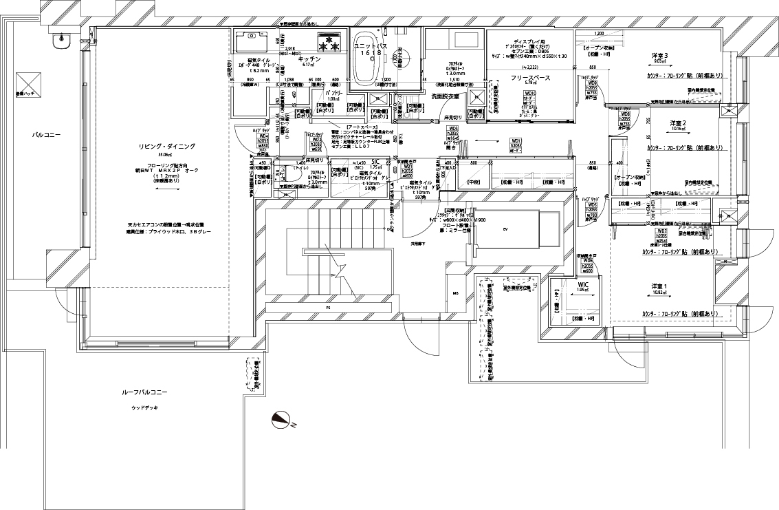
その中でも希少性の高い一室、F棟最上階東南角部屋、周囲からのぞき込まれずらい位置のプライベート感のあるルーフバルコニー付き、目の前の眺めは国分寺崖線の深い緑と広い空です。
112㎡のゆとりを生かした室内は、陽光あふれる広いLDKと3つの寝室に加え、書斎や客間、WICとしても自在に使い分けられるマルチ収納も完備、静寂、緑と空を感じて暮らす、まさに「特等席」のようなお部屋です。
Matterport 360°VR で見る
- 図面
- マップ

物件を見たい



















