
西荻窪 COMING SOON
For Sale
Scroll
Outline
吉祥寺の隣、けれどここは独自の雰囲気のカフェやビストロ、古本屋などの高感度なショップが軒を連ねる。西荻窪駅中から高架下のマイロード商店街を抜けて雨に濡れることなくこのGSハイム西荻窪に徒歩2分でたどり着きます。1階、地下1階はバーやスナックの店舗群、猥雑でカオスな雰囲気が漂うマンションの3階のドアを開ければそこは別世界。
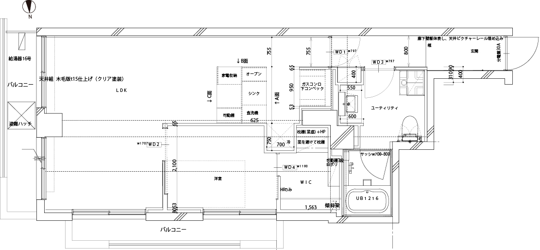
一般的には敬遠されがちな「ピストル型」の変形間取り、その長い廊下を通るためだけの無駄な空間ではなく、コンクリート躯体壁を現しピクチャーレールを配置しお気に入りのアートを飾る贅沢な余白にしました。
リビングは武骨な木毛板の天井と温かみのあるオーク材の床。
複数人で作業できるステンレスのキューブ型キッチン。
この一癖ある変形間取りを面白がり、使いこなせるのは「やっぱり西荻じゃなきゃダメだ」という確固たる街への愛情を持つあなただけ。
おひとりさま、DINKSのカップルへ向けた一風変わった快適空間です。
現在内装工事中、5月下旬完成予定。
Matterport 360°VR で見る
- 図面
- マップ

物件を見たい







