
NEW! 高円寺
For Sale
Scroll
Outline
JR高円寺南口、パル通り商店街のアーケードを抜けて徒歩4分、1階に西友が入居する便利なこと極まりない好立地です。
【グッドポイント】
・駅までの道のりはアーケード商店街の傘いらずの立地
【気にする人には気になるポイント】
・土地権利が地上権(2029年に更新予定)で、更新料負担の可能性有(金額未定)
・すでに廃止された集中給湯システムの負債を返済中(月額6,600円、残存推定約10年)
Matterport 360°VR で見る
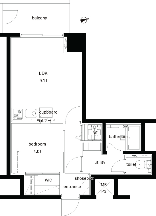
- 図面
- マップ

物件を見たい