
プライベートバルコニーの希少性 用賀
For Sale
Scroll
Outline
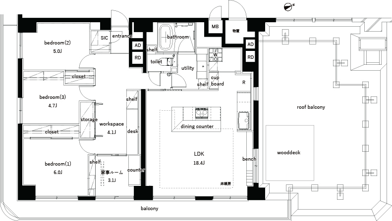
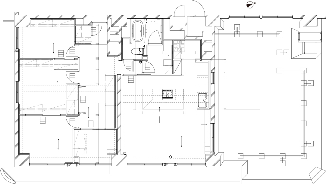
多摩川の自然や緑に恵まれた人気のエリア、用賀駅から二子玉川方面に徒歩6分、建築後47年経過してますが、新耐震基準を満たしたマンションです。室内は3LDK、3つの寝室を少しずつ狭くし、その面積で家事室、ライブラリースペースを設けました。ペット2匹と暮らせる最上階、東南北角部屋で他の住戸と視線が合わないプライベート感あふれるルーフバルコニー(34.55㎡)がある希少性の高いお部屋です。
Matterport 360°VR で見る
- 図面
- マップ

物件を見たい



















