
職住近接、プライベートガーデンのある暮らし 二子玉川
For Sale
Scroll
- 瀬田サンケイハウス1F(平置き駐車場専用使用権付)
- 昭和44年8月
- 田園都市線「二子玉川」駅より徒歩10分
- 11,990万円(税込)
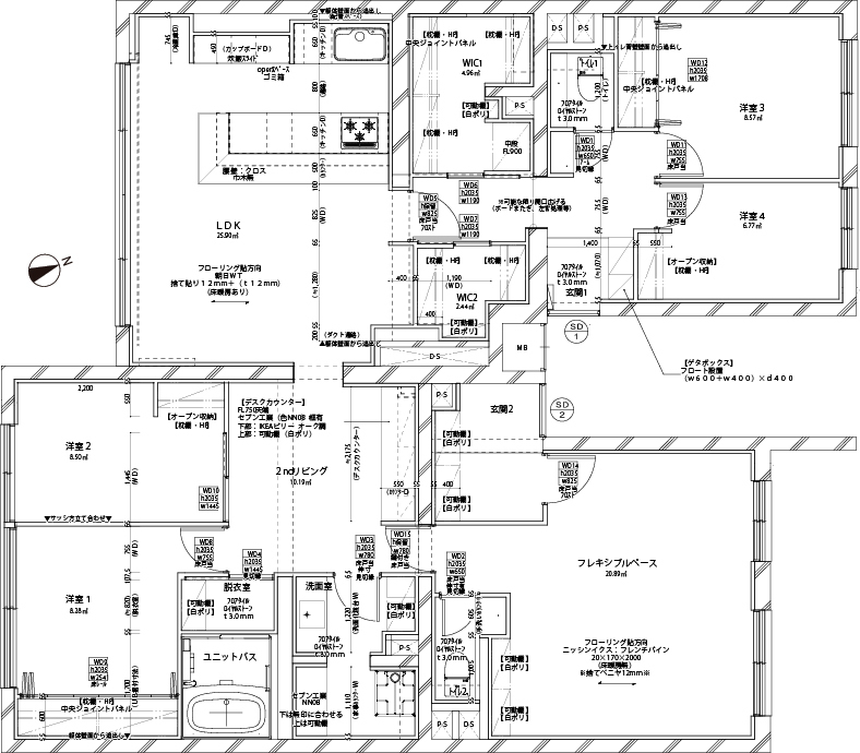
- 1F 4LDK+フレキシブルスペース+ワークスペース 134.24㎡
Outline
再開発で賑わう「二子玉川」駅から徒歩10分、閑静な高台に佇む「瀬田サンケイハウス」。築後56年が経過し共用部は少しくたびれていますが、このお部屋はそれを補ってあまりある魅力があります。
134㎡の広さを生かし、大型ダイニングカウンターで家族を繋ぐ暮らすスペースと、2つ目の玄関から直結する約21㎡のワークスペースに分離。これにより夫婦共に在宅ワーク、スモールオフィス、自宅サロンなど用途はいろいろ、家族のプライバシーを守りながら「離れ」で仕事をする理想の職住近接が叶います。平置き専用駐車場(2,500円/月、中型車以下)があるのも嬉しいポイント。
暮らしの中心は大型ダイニングカウンターを備えた開放的なキッチン、仕事の合間に64㎡のプライベート感あふれた専用庭で息抜きをする、そんな自由で贅沢なライフスタイルがここにはあります。
Matterport 360°VR で見る
- 図面
- マップ

物件を見たい



















