
夕陽に照らされ、多摩川を望む家 COMING SOON
For Sale
Scroll
Outline
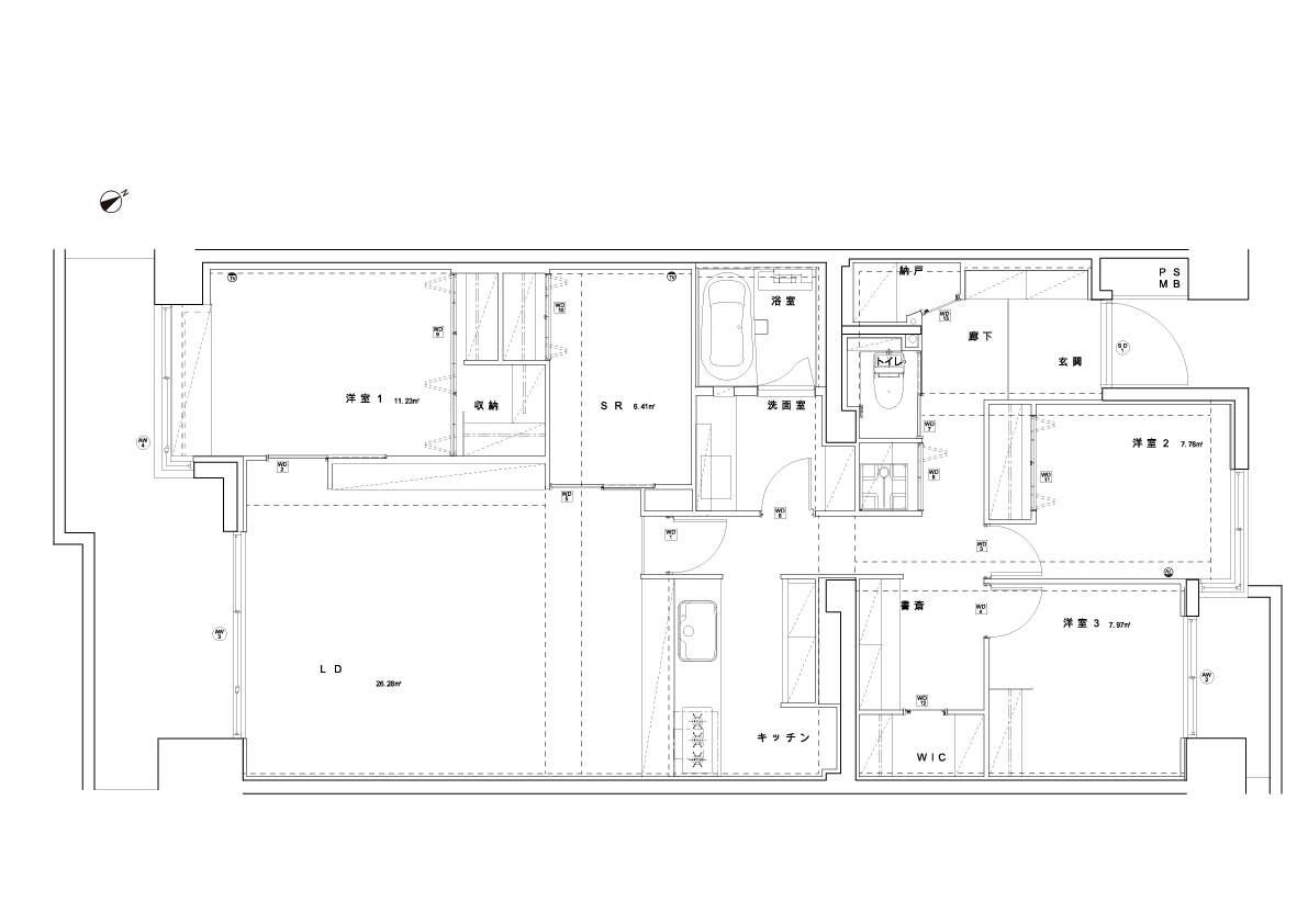
竹中工務店により施工された多摩川ハイムは、大小、各所への修繕が行われてきた風格のある建物です。2号棟の13階は日当たりの良い南西向き、富士山と沈む太陽を望む有難い眺めがこの家の魅力。室内は十分な広さの水回り設備、夫婦1つずつあるWICなど豊富な収納、こどもたちのためのワークスペース等、暮らしの機能が過不足なく配置されたお部屋です。2月上旬完成予定。
Matterport 360°VR で見る
- 図面
- マップ

物件を見たい













