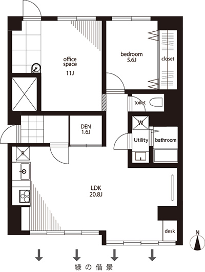
こちらの物件は玄関が外観側に1箇所、マンション共用廊下側に1箇所の2箇所にあり、なおかつ1階にあるにもかかわらず、2〜3階からの眺望を感じられる不思議なお部屋です。タイトルにもあるように、男前なインダストリアル感のある内装かつ、2つの顔を持つプランになっています。

まずは共用廊下側の玄関からご案内します。扉を開けるとシューズボックスがあり、家族2、3人分ならすっきり収まりそうです。そのまま廊下を進み、リビングダイニングへ。

鉄フレームと木、天板はステンレスのキッチンは正に男前。キッチン用品がたくさん収納できるように、壁にはポール、棚、そして2型キッチンのように、カウンターテーブルにもなる作業台が向かい側にあります。



LDKの全貌はこちらから360度でご覧いただけます。
LDKには造作デスクのワークスペースをご用意。他にも床のフローリングと同じウォルナット材で作成したアクセントウォールのテレビスペース、そして使い方は住む方次第の書斎スペースがあります。趣味のスペースやキッチンのパントリーとして、ご夫婦それぞれのワークスペースとしても活用いただけます。


次に、外観側の玄関からご案内します。扉を入ると広いタイル張りの土間が目に入ります。ここなら自転車もバイクも置くことができます。こちらはSOHO利用を想定したプランになってます。有孔ボードの壁になっているので例えば自転車のメンテナンス用の工具やDIYの道具などを見せる収納することができます。

こちらもぜひ360度でご覧ください
Post from RICOH THETA. - Spherical Image - RICOH THETA
360度でご覧いただくと、オフィススペーステーブル奥にお気づきでしょうか。壁に取手があります。

ここはプライベート空間(LDK+ベッドルーム)とオフィススペースを分ける仮設の壁です。今はディスプレイとして仮の壁を設置していますが、ここにお住いの方の暮らし方次第できちんと扉を設置したり、オープンでつなげて使用いただいたり、はたまた間仕切り壁をきちんと設置する事もできます。
いかがでしょうか男前なインテリアと2つの顔のあるこちらの物件。
実際にご覧になりませんか。
内覧ご希望の方はこちらのフォームよりお問い合わせください。