こんにちは、関田です。ウダツでは”新しい試み”をすることを今年の目標にしています。大家さんの「困った」に応えられるか、この試みをレポートします。
以前、宮島がブログでお伝えしましたこちら
大家さんからのご相談。話の始まりは半年前。アパートの大家さんがウダツへ相談されてきたことがきっかけです。「9部屋のうち3部屋が埋まらず、1年経っている。」「予算はあまりないがリノベーションしてなんとか空室を埋めたい。」というご要望でした。物件は葛飾区新小岩。JR新小岩駅から徒歩17分。少し遠い距離ですが商店街を歩く道のりなので退屈さはありません。


物件の周囲は下町情緒漂う住宅街です。

物件はこちら。築40年は経過している3階建てのアパートです。


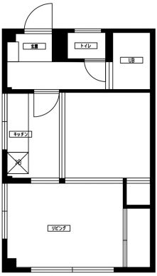
お部屋に入ってみると、間取りは40年前の暮らしのままです。

間取りは細かく仕切られ、洗濯機置き場は外です。洗面所もありません。さらに、古いお部屋のキッチンは汚れ、掃き出し窓やユニットバスの扉は壊れています。以前の生活感が色濃く残っていました。


こちらのお部屋は古いままでしたが残り2部屋は大家さんが施工業者に頼み、リフォームを加えていました。「部屋を綺麗にしても入居者が現れない。」大家さんは根本的な解決を求めてウダツにご相談されました。次回は工事の内容を大久保からお伝えします。