2018/5/17 「日本仕事百科」掲載記事住まいって自由だ
好奇心いっぱいに
「お花見テラスつきメゾネット」
「キッチンが特等席」
そんなユニークなタイトルで紹介されているのが、株式会社ウダツの扱う物件。
スペックやグレードよりそこで過ごす時間のことを考えて、家の提案をしています。

株式会社ウダツは、中古物件を買い取り、自社の物件としてリノベーションの企画を立て、施工、売買・賃貸まで、一貫して社内でおこなう会社。
今回は、バックオフィスで営業をサポートするマネージャーと、現場アシスタントを募集します。
いずれも、未経験者でも大丈夫。
家づくりっておもしろい。その気持ちを一番大切に考えている会社だと思います。
東京・六本木。
地下鉄の駅を降りて、5分ほど。飲食店の並ぶ路地を歩いていくと、ウダツの事務所が入るビルに到着。
エレベーターで3階に上がって、まずは代表の宮島さんにお話を伺う。

宮島さんはもともと不動産売買に関わる仕事を長く続けてきた。
「典型的なクレーム産業であるだけに、不動産市場には楽しい空間や味わいのある素材より、隙間や不揃いがないことを最優先に考えてつくられた物件が多いんです」
「デザイナーズマンションのような例もありますが、それだと買うときはデザインに満足していても、コンクリート打ちっ放しや、らせん階段など、生活感とかけ離れたデザインのために、他の人に売却することになったときに買い手がつかなくて、価値を落としてしまうことがあるんです」
平凡すぎるか、かっこよすぎるか。
そんな両極端な市場で家探しをしている人も、本当は空間や素材の風合いを楽しむような“遊び心”や、デザインと住みやすさの両立を求めているんじゃないか。
宮島さんが会社をはじめたのはそんな思いからだった。
「家づくりをするときは、暮らす人の生活をイメージして、余計なデザインはできるだけ排除します。炊事、洗濯、収納のような暮らしぶりが映えるキャンバスのように、家をつくっていきたいんです」

無垢材の床と、真っ白の壁と天井。
住む人を選ばないデザインは、みんなにちょうどいい。
ここから、自分たちに必要な生活を配置していく余白もある。
「お客さんには『こんな物件あったんだ!』って、よく言われるんです」
そのリアクションには、半ば諦めていたのに出会えたという驚きとうれしさが感じられる。
住む人が何を求めているか。
もし新築なら、施主の希望を聞いて、そのとおりに施工していけばいい。
ウダツの場合はリノベーションした後で売りに出すので、プランニングのときは入居者が誰になるかわからない。
その状況で、どうやってプランを考えているんだろう。
「地域とか、グレードとか、間取りの条件をもとに、それを一番必要としている人のこと、その人が送っている生活を想像しながらつくるんです」
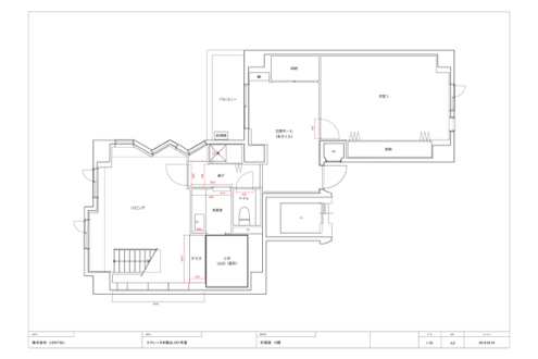
宮島さんが話してくれたのは、現在施工中だという文京区本駒込の物件。
築25年ほどのマンションで、12階と13階がメゾネットになっている。
高層階ならではの景観を生かしたルーフバルコニーもある。

「実はここ、もともとすごく変わった間取りだったんですよ。137平米もあるんですが、2LDKしかなくて」
親子4人がベッドを並べるための15畳の寝室が間取りの中央にあり、茶室風の部屋なども付いている。
上階のリビングに行くためには茶室をぐるっと迂回して、階段を上がる必要もあった。
「立地としてはすごくいいんですが、個性が強すぎてなかなか売れなくて。それで僕らが買い取ってリノベーションをすることになったんです」
条件の多い物件こそ、人物像をしっかり考える。
宮島さんは、設計士さんたちと一緒にどんな人が住むか考えることからプランニングをはじめた。
「駅から近いし、グレードも高い。1億円超の家を買うことができる客層で、学問の街といわれる文京区という場所柄から、教育医療関係に従事されていて、ペット愛好家のファミリーがここで暮らすだろう、という仮説を立てました」
見晴らしのいいルーフバルコニーのそばには、家族が一緒に食事する広いリビングダイニング。
子供たちがそれぞれの時間を過ごせる部屋。
壁一面の本棚を備えたセカンドリビングは、家族が一緒に学びを共有できる空間に。
さらに、ペットが2匹まで飼えるという、このマンション特有の条件を最大限活かせるように、エントランスをペットと遊ぶためのスペースにした。

犬や猫が走り回れるだけの空間があるだけでなく、ペット専用のお風呂には温水シャワーも使える。
「ペットも家族の一員だと考えるような家族なら、絶対に喜んでもらえる。今回は文京区だったんですが、同じ家族構成でも港区とかだと、またちょっと違う。地域ごとに家族の生活を具体的にイメージして考えています」
飼っている犬の種類、持っている服や靴の量、洗濯の頻度や洗い方、子供の習い事、休日の過ごし方。
自分たちがしたかった暮らしが、ここならできる。
そんな想像が、家を買う決め手になるのかもしれない。
今まさに施工中だという、この物件。
現場を担当している小松田さんにも話を聞いた。

小松田さんが普段事務所にいるのは、1日2時間ほど。それ以外の時間は現場をまわっていることがほとんどだ。
施工の面から見て、この物件はどうですか?
「一番悩むのは水の配管ですね。特にここはメゾネットだから、上の階までどういう経路でつなげるか考えないといけない。こんなマニアックな話でいいんですか?」
小松田さんが「マニアック」だと言うように、たしかに自分の家の配管が壁や床の内側でどうなっているか、意識することはほとんどない。
専門家任せにしてしまいがちなところもある。
「職人さんに任せていると、工事しやすさが優先されてしまう。そうすると、配管のせいで床が上がってしまったり、天井が下がったりすることがあるんです」

知らず知らずのうちに、空間を圧迫してしまう。住みにくさにつながってしまうことも。
「ちゃんと伝えたつもりだったのに、全然違うことになっていたり。心折れることもありますけど、しつこく言うしかないんです」
経験が長くプライドもある職人さんたちに、やり直しをお願いすることもある。彼らに「しょうがねえな、やってやるよ」と言ってもらえるような関係性を築くことが、現場の腕の見せ所でもある。
見えない配管まで、きちんと計画どおりにおさめなければ、思っていたような空間には仕上がらない。
ときには絵に描いて説明したり、数字を書き留めておいたり。
伝わらなければ、言い方にも問題があるかもしれない。
デザインの意図を現場に伝えることに、そんな責任を感じている。

1年前にアシスタントとして入社した小松田さん。いまは現場監督も兼任している。
「体力がいる仕事だと思いますよ。だからこそ、若いうちに現場を知ることができてよかったと思います」
前職で住宅のリフォーム営業をしていた小松田さんがウダツに入社したのは、いつかは設計に関わるために、現場を知りたいと思ったから。
いつかは設計に関わりたい。
子供のころ、自分の家が建つところを間近に見て以来、ずっとそう思ってきた。
小松田さんにとって、どんな家づくりが理想ですか?
「いつか自分が住みたい家の話なんですけど、築50年くらいの平屋をリノベーションしてみたいです。梁とか柱とか、大工仕事の良さが残る家って、味があっていいなと思います」
日本の在来工法による家づくりは、丈夫で無駄がない。
妥協のないものづくりへの憧れは、小松田さんの仕事にも影響を与えているような気がした。
「配管が終わると、本当にホッとするんです」
配管を通って流れる水。その排水や水量など使い心地は、暮らしてはじめてわかるもの。
水回りのちょっとした動作の繰り返しがストレスなく行えることは、生活の充足感に欠かせない。
しつらえだけでなく、見えないところこそ大切にする、ウダツの姿勢を垣間見たような気がした。

不動産としてのグレードだけでなく、内装の良さにもこだわった家づくりがいい。
バックオフィス担当の大北さんが入社した動機も、少しそれに似ているかもしれない。

大北さんは東京を離れることになり、8月に退職の予定。今回の募集はその後任になる人を探している。
「私の実家は奈良にある、築200年くらいの家なんです。中学生のころに、家族でリフォームして水回りを直したり漆喰を塗ったり。家づくりっておもしろいなと、そのときからずっと思っていました」
やっぱり、建築に関わる仕事がしたい。そんな思いで仕事を辞めて上京した。
「新築の真新しさより、白い壁と無垢の床、経年変化を楽しめるリノベーションの仕事をやってみたいと思っていたときに、日本仕事百貨の記事でウダツを知りました」
第一希望は現場担当だったものの、未経験ということもあってバックオフィスの仕事を担当することになった。
電話やメールの対応、発注、請求書のチェック。営業のミーティングに参加したり、得意先や新規の企業に渡すノベルティの企画をしたり。

販促のため家具を買って、物件にディスプレイしたり、ユーザーへのインタビューなど、現場へ足を運ぶ仕事もある。
「営業の手が足りないときは、物件案内にも行くこともあります。完成した物件を自分も見てみたいから『私、行きます!』って。あとは、ワックスがけとか。すごい楽しいんですよ!」
ワックスがけ?
「入居者が自分でワックスがけをすると、礼金が無料になるっていうサービスがあるんです。最初だけ私たちがお手伝いをするんですが、入居者さんたちと喋りながら手を動かすのが楽しくて」

もともと現場希望だった大北さん。作業も上手だと社内でもお墨付き。
逆に、バックオフィスの仕事をやることにギャップを感じなかったのだろうか。
「私は未経験だったから、現場だけ見ていたらわからないことがたくさんあったと思います。ここで仕事をしていると、営業の人の話が聞こえたり、いろんな請求書が届いたり。全体の流れを知ることができてよかったと思います」

未経験者にとっては、吸収できること、挑戦できることが多い職場。
一方、7人という少人数体制の中に未経験者を迎えるのは、会社としては大変な面もある気がする。
それでも、代表の宮島さんは未経験者を受け入れることにも積極的だ。
「なんでも好奇心いっぱいに手を挙げてくれる大北を見ていると、仕事が楽しいんだなっていうのがわかるんです。好きだから、自分で学んだり成長したりもできる」
「僕たちのように、“考え抜いて納得した商品だけをつくる”というやり方は、クレームの多い不動産業の中では、リスクを伴うことも多い。だからこそ、ただ効率だけを考えるよりも、どうしてもやりたいっていう気持ちの方が大切だと思うんです」

家づくりっておもしろい。
純粋に、好きだと思ったときの気持ちを諦めずに挑戦できる仕事。
役割や経験を超えて共有される、そんな思いをエネルギーに、ウダツの家づくりは進んでいくのだと思いました。
(2018/5/17 取材 高橋佑香子)
